Start - CAD-Projekte im Studium - P2 - 2. TA
Positionsplan EG, 2. Teilaufgabe

Positionsplan EG als PDF, 420 kB
Positionsplan ZG, 2. Teilaufgabe

Positionsplan ZG als PDF, 421 kB
Positionsplan OG, 2. Teilaufgabe

Positionsplan OG als PDF, 482 kB
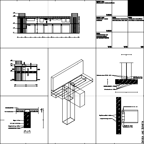
Schnitte und Details, 2. Teilaufgabe

Schnitte und Details als PDF, 399 kB
Isometrien, 2. Teilaufgabe

Isometrien als PDF, 427 kB
Zusammenstellung
Alle Pläne als ZIP, 2.08 MB